宇成反沖洗過濾器 立式反沖洗過濾器 反沖洗過濾除污器
反沖洗過濾器,立式反沖洗過濾器,反沖洗過濾除污器,反沖洗過濾生產
一、反沖洗過濾器介紹:
反沖洗過濾器用于煤礦井上、井下水質過濾。安裝在煤礦井下采煤、掘進噴霧用水、巷道、皮帶噴霧灑水管路或地面供水管路上,對所用水雜質(鐵銹、泥沙、懸浮物等)進行過濾并可對過濾后留在過濾網內的雜質進行自動或半自動反沖洗的水質過濾器。 環境溫度為-10℃~ 40℃,煤礦井下空氣成分應符合《煤礦安 全規程》,工作環境允許有淋水情況,按照一般金屬物搬運條件即可。適用壓力為0.6-10Mpa管路中進行過濾。過濾精度達到60-400目(根據用戶需要加工訂做)。
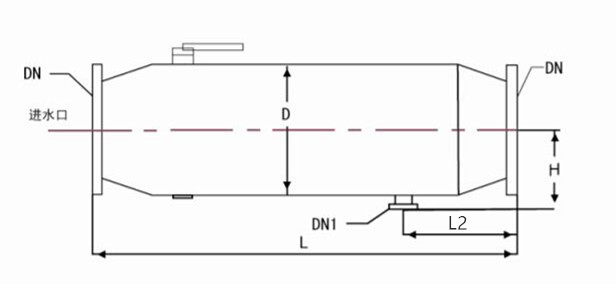
二、反沖洗過濾器尺寸圖:


三、反沖洗過濾器安裝注意事項:
1、安裝只需按照設備筒體上箭頭指示進水方向連接在管路上;
2、設計、安裝時應盡量考慮排污口在下部,便于雜物的順利排放;
3、排污管就近接入排水溝,且應保持排污順暢;
4、為便于觀察系統工況和日常操作,應在進、出口安裝壓力表和手動閥門;
5、排污時,應根據排污情況,通過開關閥門,對濾網沖洗10-60秒。
反沖洗過濾器可立式、臥式、倒置任意方向任意位置安裝,可用于工業、農業、市政電力、電子、醫藥、食品、印染、建筑、鋼鐵、冶金、造紙等各行各業水過濾。反沖洗過濾器應用廣泛,歡迎來電訂購。










